Produkt został zapamiętanyDo przechowalni

OGRZEWACZE / ZASOBNIKI

KOSPEL Bufor c.o. SV-200.1, 200 litrów nieemaliowany w izolacji

Indeks: 75807
Indeks producenta: SV-200.1
EAN: 5906564221392
Producent: KOSPEL

Status: .NATYCHMIAST.
Dostępność: 22
2 348,90 PLN
Ilość

KOSPEL zbiornik buforowy SV-200.1 bez wężownicy nieemaliowany SV-200.1.PL

Zbiornik buforowy, nieemaliowany do gromadzenia ciepła z kilku źródeł Kospel SV-200.1

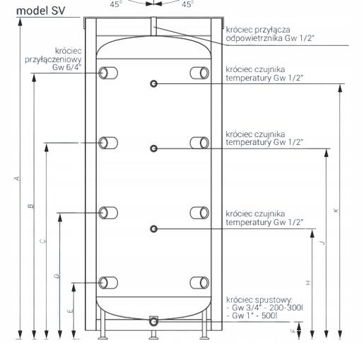
Zbiornik buforowe c.o. - nieemaliowane, doskonale nadają się do gromadzenia ciepła z kilku źródeł, np. z 2 kotłów. Dodatkowo pełnią funkcję rozdzielacza (sprzęgła), separatora hydraulicznego, obiegu grzewczego od kotłowni.

  • pojemność - 210 l
  • średnica zasobnika - 595 mm
  • wysokość zasobnika - 1616 mm
  • grubość izolacji - 65 mm
  • Możliwość zastosowania grzałki 6/4''
  • Obudowa nierozbieralna.
  • Średnica - 595 mm
  • A - 1616 mm
  • B- 1322 mm
  • C - 970 mm
  • D - 618 mm
  • E - 266 mm
  • F - 125 mm
  • H - 554 mm
  • J - 911 mm
  • K - 1239 mm
Podstawowe
Stan:Nowy