Produkt został zapamiętanyDo przechowalni

KOTŁY

Kocioł gazowy kondensacyjny DE DIETRICH MCR4 24 z zasobnikiem SRK 150 MG

Indeks: 74692
Indeks producenta: 7857045150K
EAN: 5908287185456
Producent: DEDIETRICH

Status: .NATYCHMIAST.
Dostępność: 8
9 624,70 PLN
Ilość

Naścienny gazowy kocioł kondensacyjny w zestawie z podgrzewaczem c.w.u. MCR4 24/SRK150MG

Dane techniczne:

  • Kondensacja
  • Max. temp. robocza: 80°C
  • Termostat zabezpieczający: 110°C
  • Max. ciśnienie robocze: 3 bar
  • Zasilanie elektryczne: 230 V/50 Hz
  • Stopień ochrony: IP X5D (system B23, B23p, B33 redukuje do IP20)
  • Kategoria gazu: II 2ELwLs3B/P
  • Klasa NOx: 6
  • Homologacja: B23 , B23P , B33 , C[10]3 , C13 , C33 , C43P , C53 , C63 , C93
  • Moc znamionowa 50/30°C (c.o.) min/max kW: 3,3-26,1
  • Moc znamionowa 80/60⁰C (c.w.u. z podgrzewaczem) min/max kW: 3,0-29,0
  • Pojemność podgrzewacza c.w.u. l: 150
  • Powierzchnia wymiany m2: 1,14
  • Moc wężownicy (*) kW: 33
  • Strata postojowa W: 39

* 80/10/40°C temperatura wody grzewczej / temperatura wody zasilającej / temperatura wody użytkowej

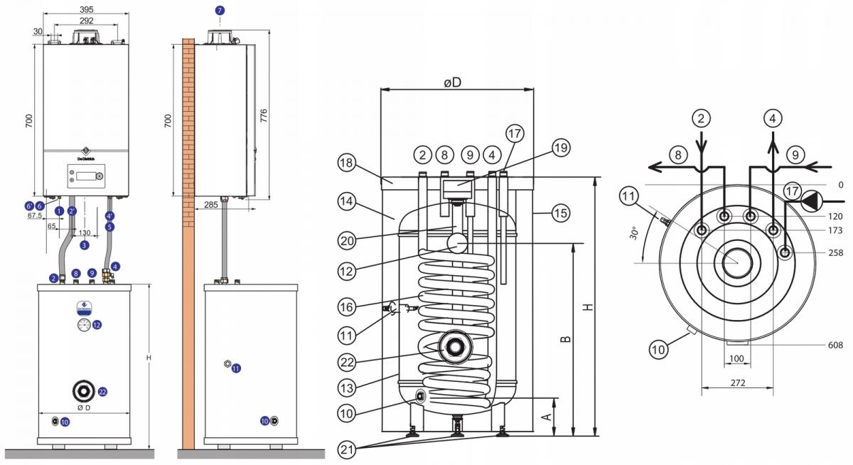
Wymiary (do rysunku):

  • 1 Zasilanie c.o. 3/4
  • 2, 2' Zasilanie wężownicy podgrzewacza 3/4
  • 3 Zasilanie gazem 3/4
  • 4, 4' Powrót z zasilania wężownicy podgrz. 3/4
  • 5 Powrót z c.o. 3/4
  • 6 Odprowadzenie kondensatu Ø21,8
  • 7 Odprowadzenie spalin i przewód doprowadzenia powietrza Ø 60/100 mm
  • 8 Wylot ciepłej wody użytkowej 3/4
  • 9 Wlot zimnej wody użytkowej 3/4
  • 10 Spust wody 1/2
  • 11 Tuleja pod czujnik temperatury kotła
  • 12 Termometr
  • 13 Płaszcz wymiennika
  • 14 Izolacja termiczna wymiennika
  • 15 Obudowa wymiennika
  • 16 Rura CATS Dn20 - wężownica
  • 17 Cyrkulacja 3/4
  • 18 Pokrywa górna
  • 19 Blenda mocowania anody
  • 20 Anoda magnezowa
  • 21 Regulowane nóżki
  • 22 Mufa do montażu grzałki elektrycznej 6/4

Podgrzewacz:

  • A 130
  • B 640
  • H 940
  • D 690
Podstawowe
RODZAJ:GAZOWY